
We regularly write about interesting and planning applications – and this one on Heathwall Street below Battersea Arts Centre certainly makes a change from the usual run of bi-fold doors and mansard loft extensions. The site is currently a row of six garages on Heathwall Street, and the plans are to knock down five of them and build a two-bedroom house that has at least a passing ressemblance to row of garages.
It’s obviously a complicated and unusual place to want to build a house! Two of the four walls look directly in to private gardens (so no windows allowed there), the third adjoins a garage that is owned by someone else (so not part of the development), and the fourth looks directly on to the pavement. Some of the terrace houses on Elsley Road behind the development are also listed buildings, which limits what the developers can do around them (and as we’ve posted on before – extensions in the Shaftesbury Estate can be complicated!). The developers’ approach is to make the few windows facing the road quite high level (as shown above), but also to create a large notch that is set back from the road, to make a fairly generous internal courtyard lined with large windows that provide light around the house but also provide some degree of privacy.

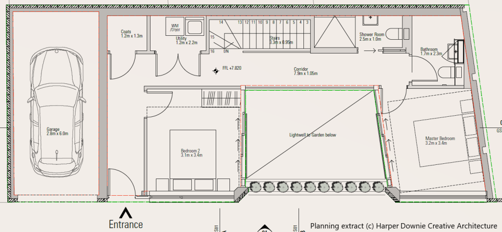
The ground floor includes two bedrooms, as well as a one-car garage – and the developers also plan to dig a basement level, shown in the perspective diagram of the site below, to substantially increase the space.

The basement level (whose floorplan is shown below) includes most of the living space, with big windows facing in to the lower level of the courtyard / garden. The house is respectably large at 1,300 square feet (about the same as a typical Shaftesbury Estate house) and the developers aim for it to have a modern design, with plans for lots of glass around the courtyard, and a mostly open plan layout – using brick, wood and polished concrete floors. The plans will lead to a small increase in the overall height of the building, compared to the existing garages. In theory, there will be some greenery at ground level in the form of integrated plant pots along the street side of the courtyard that can accommodate a hedge (though as we have seen elsewhere, such as the flats on Taybridge Road or on Avery Walk, plans for greenery included in planning applications are rarely delivered in practice – so in reality we’re maybe more likely to see a fence.

Unusually, this is not the first time these proposals have been in the planning system – as more or less the same plans were put forward (and approved) in both 2014 and in 2018, in both cases the permission timed out before the building work was started. In 2017 the developers also applied for permission for a larger variation of the scheme, with two storeys above ground (shown below), but this approach – which would substantially affect the houses behind and the street as a whole – was refused.

Now it’s fair to say that having already let the permission lapse twice without building anything, the developers here don’t seem to be in a rush to get shovels in the ground. We can also surmise that having got planning permission twice before, it is likely that they will be approved again! Plans for the site have previously been a bit controversial, with objections to the application on several grounds including that the design was bland and not really appropriate for a conservation area; but above all linked to the challenges of actually building the building and the likelihood that this could affect neighbours – including concerns that building the house would require the destruction of some of neighbours gardens, concerns about whether the developers’ assessments of the light impact on gardens and neighbouring properties were correct, including trees right next to the current garages; that the building seemed vulnerable to flooding; and that the garages weren’t as unused as was maybe implied so their loss would harm the area.

Planners approved the previous more-or-less-identical plans partly on the grounds that they were only a small change in overall scale of development and an improvement in appearance compared to the garages (which is hard to argue with), and that the overall scale of change was small – but they did apply several conditions including the reinstatement of pavements and parking spaces in front of the building at the developers’ expense, and various design, sustainability and waste management issues to ensure that the impact of the development was minimised. As ever, if you’re interested you can see the detailed plans (and, if you wish, make a comment for the planners to consider) – by visiting Wandsworth’s planning website and searching for planning case 2021/1236 .
Pingback: Six unusual new houses are coming to a secret passageway near Battersea Arts Centre | Lavender-Hill.uk : Supporting Lavender Hill