
Update (January 2021) – it’s finally occupied! By established local signmaker Signtair, who have relocated from their smaller previous shop across the road. Signtair’s former unit also has a new tenant which we’ll report on soon.
53 Lavender Hill is a shop that’s been empty for years. And that’s despite being half way along a healthy run of shops, and being blessed with a rather elegant green tiled shopfront, a front forecourt, and a basement that’s bigger then the ground floor. Empty commercial properties only get a short 3-month break from tax – which means someone out there has been paying business rates on it over the years, with no rent coming in. And we know a few people who have tried to find out who owned it with a view to letting it. But no – it stayed empty…
Many moons ago, we’ve heard it was the Co-op’s butchers. But we really do mean years ago – that’s before the old Co-op shut down at some point in the late 1990s; since then several neighbours have come and gone until a Co-op reopened next door.
It’s hosted a couple of pop-up art exhibitions along the way (where the exhibitors were offered the premises by the owner for a few days as a favour) – but other than that – nothing. We understand that it’s in the same ownership as its neighbours the Co-op and Pizza Hut, as well as the building above. But this particular unit has stayed so empty, for so long, that we’ve sometimes wondered if there was something else going on. More so early in the year, when a large amount of general debris was removed from the premises, seemingly to clear it for a new use.

A few planning applications have come and gone over the years – though up to the point where the neighbouring units were joined togethger and converted to the new Co-op supermatket, none of them were seemingly implemented.
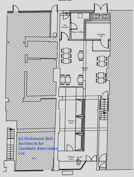
And now there’s a new planning application – for the creation of a restaurant. However it doesn’t give a lot of detail (other than that there’s what looks like a large grill counter area at the front, with seating further back in the unit) – the proposed ground floor layout is shown in the picture t the right. The basement will see a slight tidying up to house bathroom facilities.
The planning permission was looking for permission to change the use from retail to restaurant – noting that as the next door premises recently made the reverse switch (from the Ichnusa restaurant back to the Co-op supermarket) the overall health of the shopping street will be maintained.

The application was submitted on the 21st, ans wasn’t expected to be especially controversial: The key thing is that the empty unit, half way along a run of shops, needs to remain in active use, as it will help the attractiveness of this local town centre – whether it’s a restaurant or a shop doesn’t matter too much. And it is part of a protected secondary retail frontage (so can’t be converted to a dodgy ‘converted shop’ flat).
For a moment, dared wonder if the eternal emptiness of 53 Lavender Hill, our longest-unoccupied unit, might be close to an end.
But it wasn’t to be – the application was then withdrawn on the 16th July. The application doesn’t seem to have attracted much attention, and we’re not sure why it was withdrawn. We’ll keep you posted if a new application is submitted…

Pingback: Cult pizza place Yard Sale is coming to Lavender Hill | Lavender-Hill.uk : Supporting Lavender Hill